Beschrijving
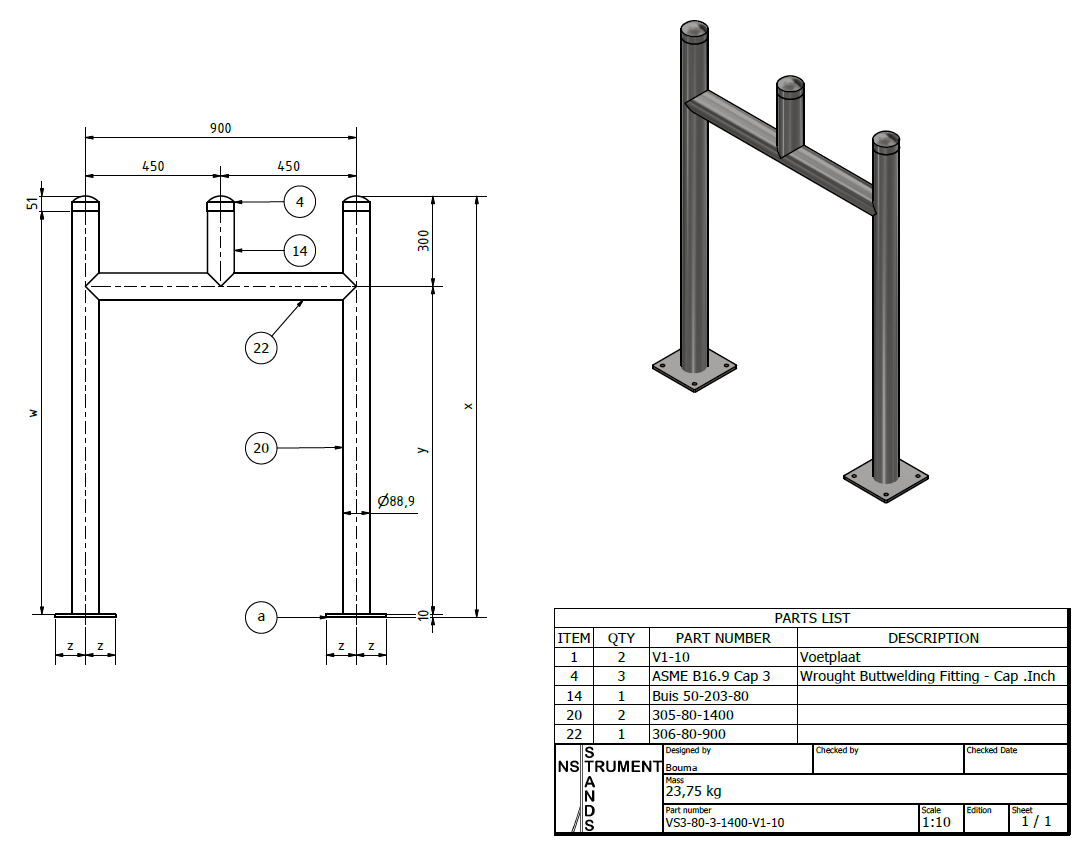
Vloerstandaard op 2 poten met 3 armen van Instrument Stands zijn vervaardigd uit 63,3 of 88,9 mm doorsnede pijp en hebben een 2 armen, welke elke een plat uiteinde hebben. Standaard voorraadpalen hebben een 20.32 x 20.32 x 0,9,5 cm bodemplaat met boor- of sleufgaten. Er is een verscheidenheid aan lengtes beschikbaar. Specifieke maten zijn op aanvraag beschikbaar. Strips kunnen ook worden toegevoegd op verzoek voor extra ondersteuning. Instrument Stands biedt verzinkt koolstofstaal aan met ASTM A123/89-vereisten als standaard. Optionele coatings zijn op aanvraag beschikbaar. De standaard vloerstandaarden worden geleverd met sleufgaten en een open basis voor drainage.
Weergaven: 4





